汉捷首页
人行通道系统
COBT(进口)
景区票务系统
停车场系统
人证核验系统
解决方案
工程案例
资讯中心
关于汉捷
资讯中心
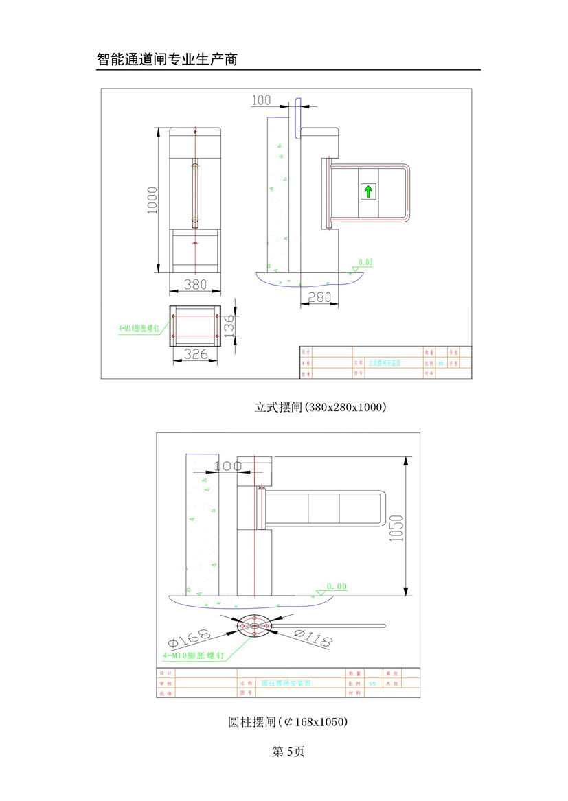
翼闸摆闸说明书
2016-2-26 17:37:03
摆闸翼闸说明书.pdf
电话咨询
发送短信
在线咨询